Fakta om ejendommen
Landejendom
3.985.000
Grundstørrelse Ha:
16.5
Driftsbygninger:
1413 m²
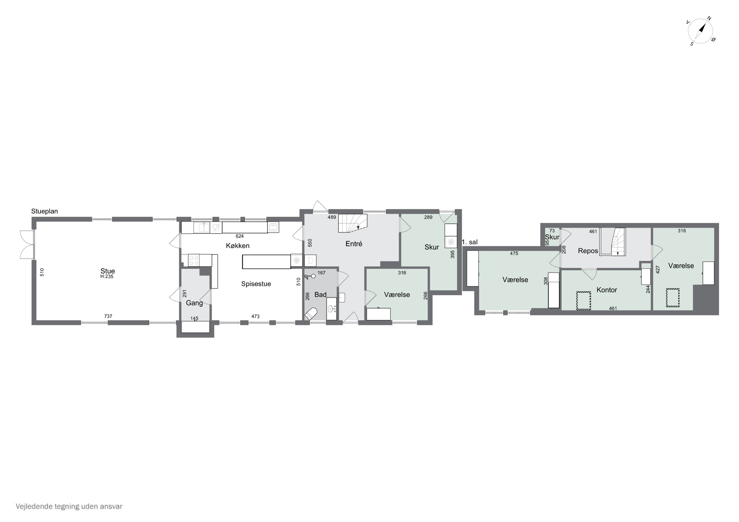
Boligareal:
174 m²
Stue/Værelser:
2/3
Bygget/Ombygget:
1850/1984
Energimærke:
Plan:
2 plan
Hesteejendom ved Faaborg nær Riderute Sydfyn med 16,48 ha
"Torpegaard" ligger hyggeligt beliggende midt i Pejrup by med kort afstand til Sydfyns skønne kuperede landskab, Riderute Sydfyn, Faaborg By og med kort afstand til landevejen mellem Faaborg og Svendborg.
Der er alene 30 min.s kørsel til den fynske motorvej med tilkørslen i Odense S eller Svendborg.
Samtidig er der få km til badestrand og Det sydfynske Øhav.
- Ejendommens bolig er med plads til en aktiv børnefamilie og med en fornuftig boligstandard.
- Omgivelserne ved bygningerne er meget harmoniske og naturskønne med landsbymiljø.
- Staldene er gode solide bygninger med attraktive hestestalde eller løsdriftsstalde til kødkvæg. Kostalden fra 1974 på 297 kvm og maskinhus med løsdriftsstald fra 2001 på 438 kvm er indflytningsklare til dyreholdet.
- Staldene og laden giver alternativt gode muligheder for lager og værksted.
- Såvel Pejrup som V. Aaby eller Faaborg har et aktivt landsby- og foreningsliv med mange aktiviteter i haller og foreninger mv.
- Man kommer også til at bo tæt på Det Sydfynske Øhav, den 70 km lange Riderute Sydfyn i skovene ved Holstenshus og op til Svanninge Bakker mv.
- "Torpegaard"s jorder ligger op til bygningerne med 16,48 ha. Derfor kan en køber også have sit dyrehold gående i løsdrift fra gårdens stalde.
- "Torpegaard" er en attraktiv lyst-, fritids-, natur- og jagtejendom for en børnefamilie med ønske om at bo på landet og tæt på skole, landsbyliv og de fynske færdselsårer.
- Ejendommen kan også være attraktiv for familier, der vil drive en håndværkerforretning, internetbutik med lager og/eller kontor hjemme fra mv., da ejendommens centrale beliggenhed til de større færdselsårer til hele Fyn, gør den attraktiv hertil.
Kontakt Birthe P. tlf. 2143 7414.
Økonomisk overblik
Kontantpris
3.985.000
Udbetaling
200.000
Brutto ekskl. ejerudgift
22.305
Netto ekskl. ejerudgift
17.606
Opret dig i køberkartoteket og få besked om lignende boliger.
Få direkte besked, når der kommer relevante nye boliger til salg, der matcher dine ønsker. Du ser også de boliger, vi får til salg, som vi ikke viser på NyboligLandbrug.dk.
Tilpas filtre og opretKontakt

Kontakt
Birthe Pedersen
Ejendomsmægler MDE, Valuar
Skal du også sælge?
Kontakt os og få en salgsvurdering, så ved du hvad din ejendom er værd.
- Få et estimat af salgspris eller en grundig vurdering.
- Få et indblik i, hvad din ejendom er værd på markedet lige nu.
- Find ud af, hvor meget du selv kan købe for, hvis du ønsker at skifte ejendom.
Hvor langt er der til nærmeste?
Afstand til nærmeste
Transport:
157 m
Indkøb:
2,32 km
Daginstitution:
1,38 km
Skole:
1,42 km
Sport og fritid:
1,17 km
Sundhed:
5,51 km
Ladestandere:
5,01 km
Lynladere:
5,35 km
Rejsetid
Se hvor lang tid der er mellem denne ejendom og en anden adresse
I bil:
- min
På cykel:
- min
Med offentlig transport:
- min
Fakta om Faaborg-Midtfyn Kommune
INDBYGGERE
52.284
GRUNDSKYLD
8,500‰
KOMMUNESKAT
26,10%
SKOLER
9
BØRNEPASNING
Vuggestue 3.767 kr./md.
Børnehave 2.245 kr./md.