Fakta om ejendommen
Landejendom
4.895.000
Grundstørrelse Ha:
20.4
Driftsbygninger:
1110 m²
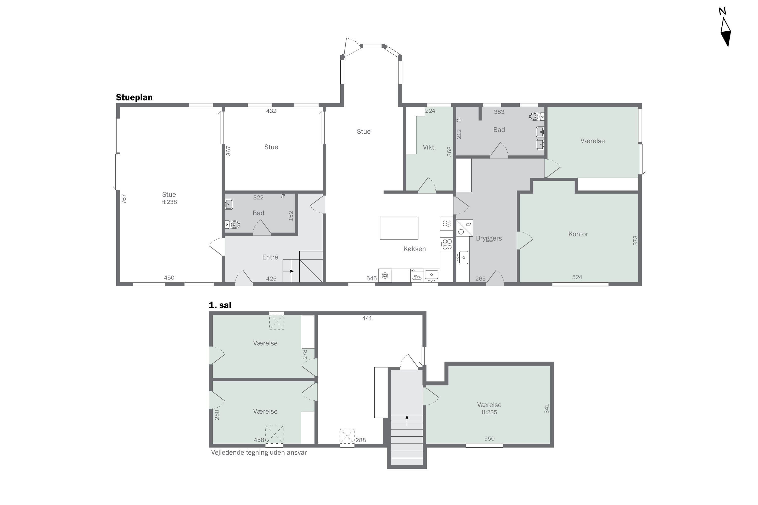
Boligareal:
256 m²
Stue/Værelser:
3/5
Bygget/Ombygget:
1864/1985
Energimærke:
Plan:
2 plan
20,4 ha naturskønt og roligt beliggende fri af støj fra veje, naboer, vindmøller ved Morud vest for Odense
- Ejendommens bolig på 256 kvm er med god plads til en stor aktiv børnefamilie og med en god attraktiv indretning og høj boligstandard.
- Omgivelserne ved bygningerne er meget harmoniske og naturskønne.
- Laden med frihøjde og de tidligere grisestalde er solide bygninger med gode muligheder for anvendelse som løsdriftsstalde, lager eller værksted mv.
- Ejendommen er godt beliggende til det fynske motorvejsnet med kun ca. 5 min.s kørsel til Vissenbjerg tilkørslen. Samtidig kommer familien til at bo med få km til Morud by, hvor der er en attraktiv anerkendt skole "Havrehedskolen" med et højt fagligt niveau.
- Morud har også et aktivt foreningsliv med mange aktiviteter i hallen mv.Man kommer også til at bo tæt på Langesøskoven, hvor der er mange rideruter, mountainbike spor, løbestier mv.
- "Elverodgaard"s jorder ligger op til bygningerne, og er meget velarronderet og harmoniske. Derfor kan en køber også have sit dyrehold gående i løsdrift fra gårdens stalde.
- Jorderne er kuperede og meget naturskønne, som landskabet er omkring Vissenbjerg/på Højfyn grænsende op til skove, så der er et rigt dyre- og fugleliv på jorderne og dermed også en god jagt.
- "Elverodgaard" vil være attraktiv for børnefamilierne, der gerne vil bo med kort afstand til skole/r, Odense, arbejdspladser nærmest i hele DK og samtidig bo på landet, da de får den gode plads til aktiviteter, dyrehold, natur, jagt mv.
- Ejendommen kan også være attraktiv for familier, der vil drive en håndværkerforretning, internetbutik med lager og/eller kontor hjemme fra mv., da ejendommens centrale beliggenhed til motorvejsnettet mv., gør den attraktiv hertil.
Økonomisk overblik
Kontantpris
4.895.000
Udbetaling
245.000
Brutto ekskl. ejerudgift
27.397
Netto ekskl. ejerudgift
21.649
Opret dig i køberkartoteket og få besked om lignende boliger.
Få direkte besked, når der kommer relevante nye boliger til salg, der matcher dine ønsker. Du ser også de boliger, vi får til salg, som vi ikke viser på NyboligLandbrug.dk.
Tilpas filtre og opretKontakt

Kontakt
Birthe Pedersen
Ejendomsmægler MDE, Valuar
Skal du også sælge?
Kontakt os og få en salgsvurdering, så ved du hvad din ejendom er værd.
- Få et estimat af salgspris eller en grundig vurdering.
- Få et indblik i, hvad din ejendom er værd på markedet lige nu.
- Find ud af, hvor meget du selv kan købe for, hvis du ønsker at skifte ejendom.
Hvor langt er der til nærmeste?
Afstand til nærmeste
Transport:
482 m
Indkøb:
2,08 km
Daginstitution:
2,17 km
Skole:
2,4 km
Sport og fritid:
1,9 km
Sundhed:
2,13 km
Ladestandere:
1,61 km
Lynladere:
4,18 km
Rejsetid
Se hvor lang tid der er mellem denne ejendom og en anden adresse
I bil:
- min
På cykel:
- min
Med offentlig transport:
- min
Fakta om Nordfyns Kommune
INDBYGGERE
29.342
GRUNDSKYLD
15,100‰
KOMMUNESKAT
26,00%
SKOLER
4
BØRNEPASNING
Vuggestue 3.768 kr./md.
Børnehave 2.044 kr./md.