”Nymølle” - Harmonisk og velholdt landejendom med helt igennem unik natur og beliggenhed<br>
Drømmer I om en harmonisk landejendom omgivet af enestående natur? ”Nymølle” byder på en unik beliggenhed med kuperet terræn, frodige engarealer og en idyllisk parklignende have med egen sø. Lilleåen snor sig smukt gennem landskabet og skaber en sjælden ro, der nu kan blive en del af jeres hverdag.
Velholdt ejendom med naturskøn udsigt
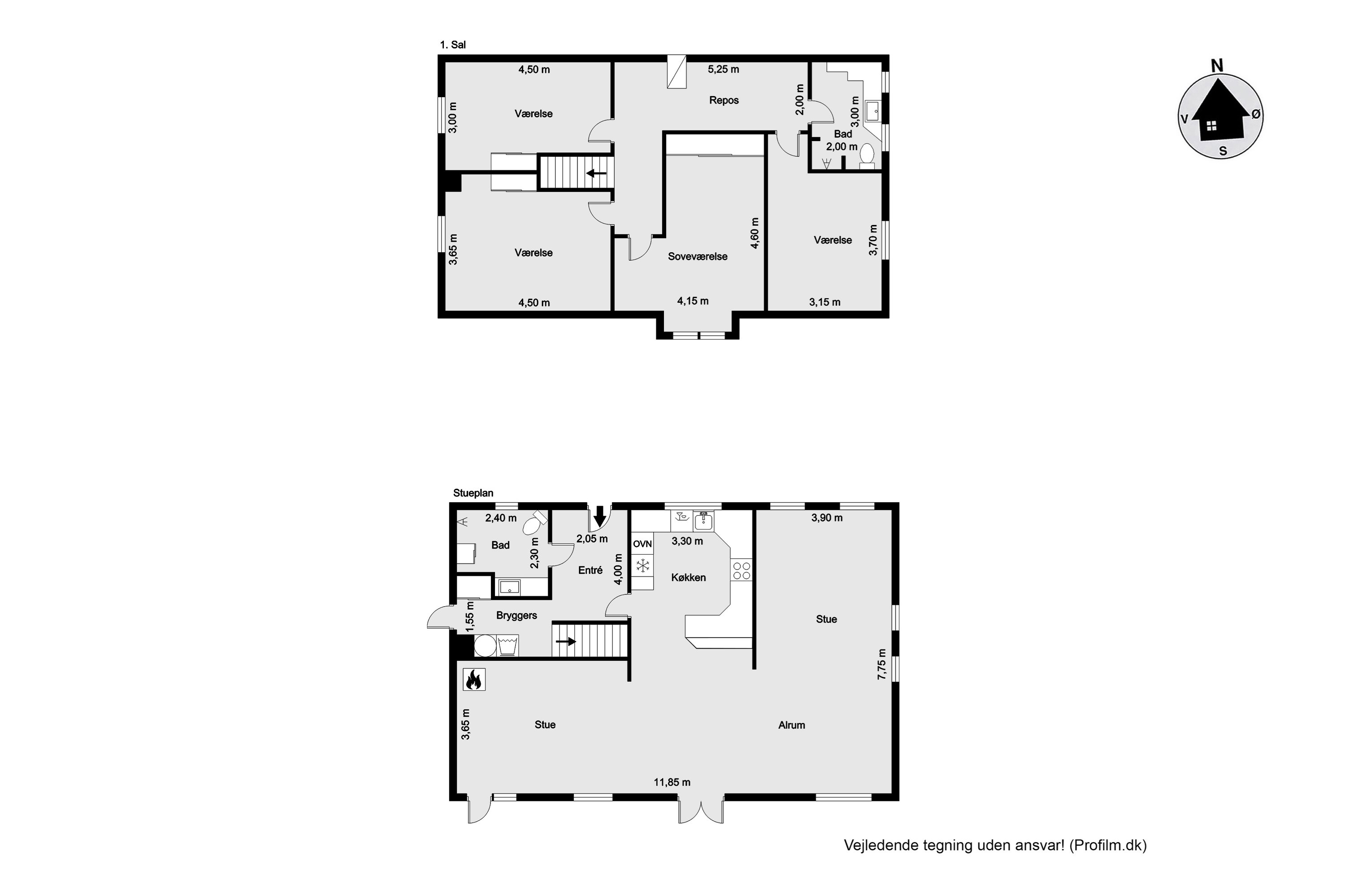
Når man ankommer til ejendommen og træder ind på gårdspladsen, mærker man straks, at her er der styr på detaljerne. Ejendommen er løbende vedligeholdt og fremstår indbydende. Det rummelige stuehus på 187 m² har bl.a. nyere tag og vinduer samt et opdateret køkken, bryggers/entre og badeværelse.
Indenfor mødes man af en varm og hjemlig atmosfære, og fra flere rum er der en fantastisk udsigt over haven, søen og Lilleåen, hvor et svanepar af og til lægger vejen forbi.
Gennemført indretning med plads til hele familien
Stuehuset er i to plan og har en funktionel planløsning. I stueetagen finder man et moderniseret bryggers og entre med adgang til et flot badeværelse med bruseniche. Det åbne køkken/alrum og opholdsstuen skaber et naturligt samlingspunkt, hvor en hyggelig brændeovn supplerer varmen. Flere steder kan man åbne dørene ud mod den sydvendte have og terrasse – og tager man turen ned til søen, venter et perfekt spot til at nyde udsigten og den omkringliggende natur.
På førstesalen er der tre gode værelser, et rummeligt soveværelse og endnu et badeværelse.
Udbygninger og naturskønne arealer
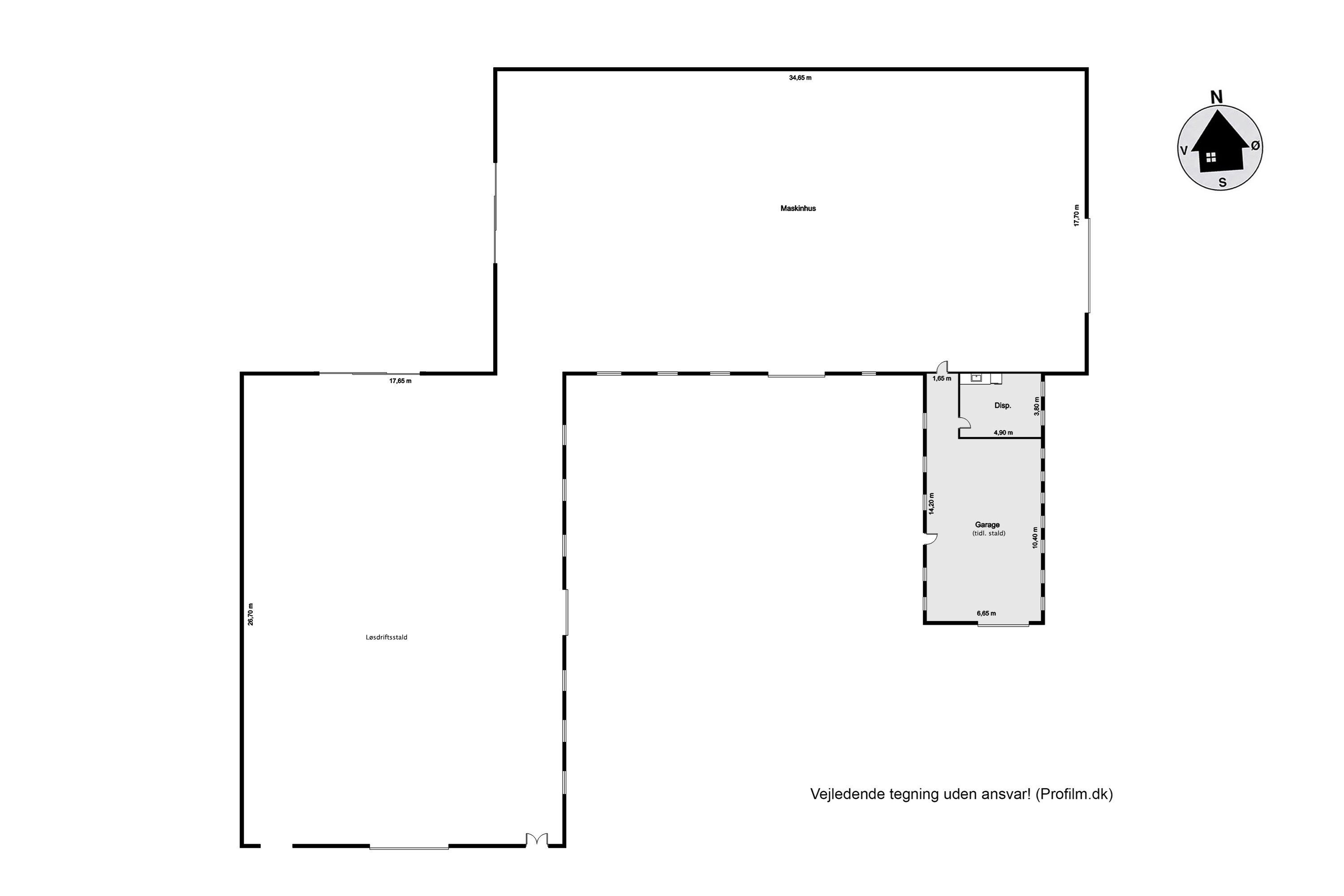
Til ejendommen hører i alt 1.192 m² udbygninger, herunder en tidligere stald, der nu fungerer som garage med port samt et anvendeligt baglokale med bl.a. håndvask. Derudover er der et maskinhus og en åben løsdriftsstald til kvæg, heste får m.fl. der kan græsse på de tilhørende 9,8 hektar jord. Ønskes det, kan der laves aftaler om yderligere afgræsning.
Engarealerne strækker sig ned til Lilleåen, der ikke bare skaber en smuk udsigt, men også byder på noget af områdets bedste fiskevand med bækørred, regnbueørred og stalling.
Perfekt beliggenhed i naturskønne Råsted
Ejendommen ligger i et område med enestående natur og kort afstand til Stråsø Plantage – et af Danmarks største skov- og hedeområder. Her kan man opleve kronvildt eller tage på svampejagt. Der er ca. 7 km til Idom,med et utrolig godt fællesskab og hvor der både findes vuggestue, børnehave, skole (til 7. klasse) og Kultur- og Fritidscentret Plexus. Er man golfentusiast, ligger den smukke Råsted Golfbane blot en kort køretur væk.
Indkøbsmuligheder findes i Ulfborg eller Holstebro, som ligger henholdsvis ca. 10 og 15 km fra ejendommen.
Denne unikke ejendom forener idyllisk natur med funktionelle rammer – perfekt til jer, der drømmer om et liv tæt på naturen uden at gå på kompromis med komforten.
Ejendommen opvarmes ved jordvarme og der er solceller.
Økonomisk overblik
Opret dig i køberkartoteket og få besked om lignende boliger.
Få direkte besked, når der kommer relevante nye boliger til salg, der matcher dine ønsker. Du ser også de boliger, vi får til salg, som vi ikke viser på NyboligLandbrug.dk.
Tilpas filtre og opretKontakt

Kontakt
Tina Gammelgaard Dinesen
Skal du også sælge?
Kontakt os og få en salgsvurdering, så ved du hvad din ejendom er værd.
- Få et estimat af salgspris eller en grundig vurdering.
- Få et indblik i, hvad din ejendom er værd på markedet lige nu.
- Find ud af, hvor meget du selv kan købe for, hvis du ønsker at skifte ejendom.
Hvor langt er der til nærmeste?
Se hvor lang tid der er mellem denne ejendom og en anden adresse