Naturskøn landejendom med egen sø og 2,9 ha jord i Råsted
Drømmer I om en landejendom, hvor naturen spiller hovedrollen, og hvor både bolig og udearealer er i flot stand? På ”Nymølle” får I en ejendom omgivet af kuperet terræn, frodige engarealer og en parklignende have med egen sø. Lilleåen slynger sig smukt gennem landskabet, hvilket skaber en rolig atmosfære og en sjælden naturoplevelse – lige uden for døren.
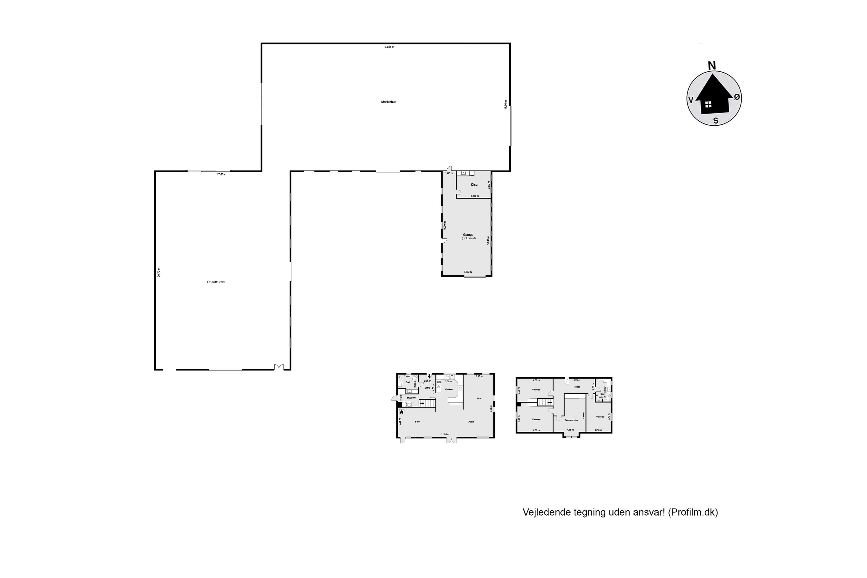
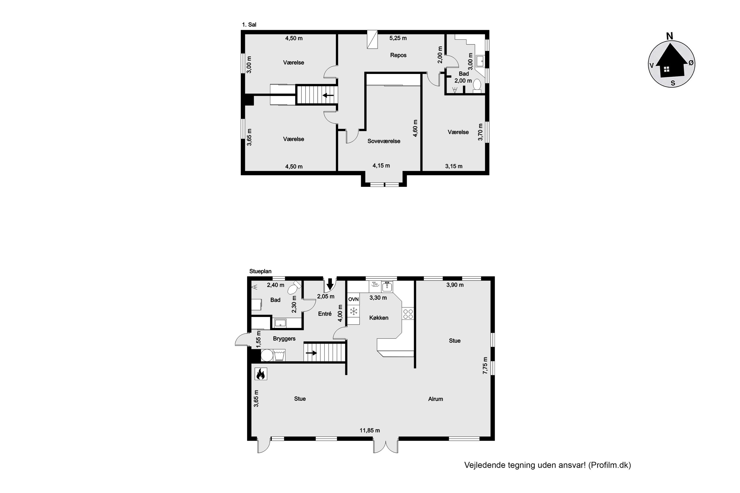
Stuehuset på 187 m² fremstår velholdt med nyere tag og vinduer samt et moderniseret køkken, bryggers/entre og badeværelse. Huset er fordelt på to plan og byder på en funktionel indretning. I stueplan findes bryggers/entre, flot badeværelse, køkken/alrum i åben forbindelse med stue samt hyggelig brændeovn og udgang til terrasse og have. På førstesalen ligger endnu et badeværelse, tre gode værelser og et rummeligt soveværelse. Flere af rummene har en smuk udsigt over have, sø og åløb.
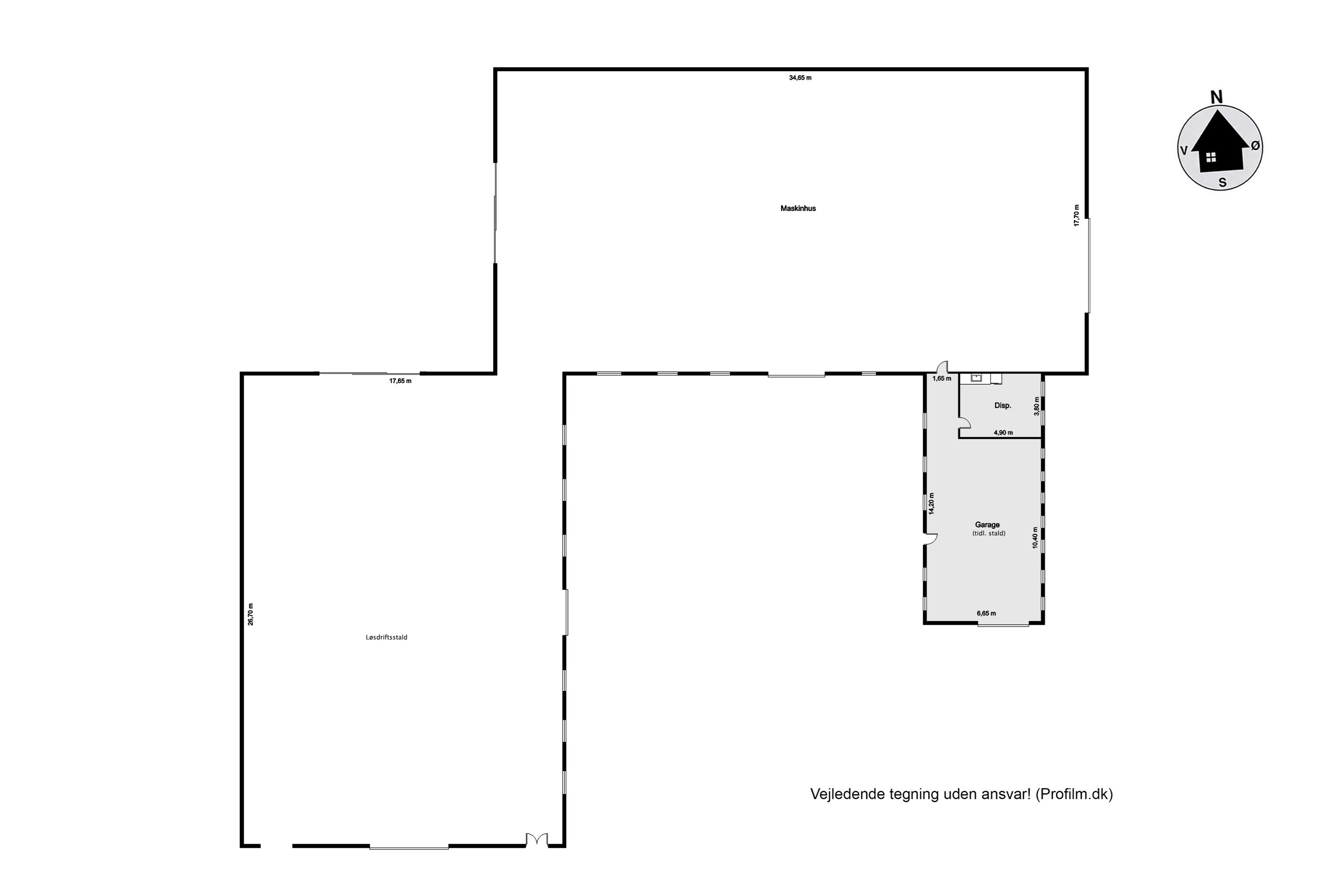
Ejendommen rummer i alt 1.192 m² udbygninger, herunder garage i tidligere staldbygning, maskinhus samt åben løsdriftsstald, som kan anvendes til kvæg, heste, får eller andre dyr. Jorden, er under udstykning, på ca 2,9 hektar ligger samlet og består af engarealer, der strækker sig ned til Lilleåen – et eftertragtet fiskevand med både bækørred, regnbueørred og stalling.
Ønskes det, er der mulighed for at tilkøbe yderligere jord eller man kan leje op til 10 ha.
Beliggenheden i Råsted giver direkte adgang til et af Danmarks mest naturskønne områder. Stråsø Plantage ligger tæt på og byder på store natur- og friluftsoplevelser med bl.a. kronvildt og gode muligheder for jagt og svampeture. Samtidig er der 10 min til Idom med skole, dagtilbud og et aktivt lokalsamfund, mens både Ulfborg og Holstebro ligger inden for 10-15 minutters kørsel. For golfentusiaster er Råsted Golfbane blot få minutter væk.
Ejendommen opvarmes med jordvarme og har solceller, hvilket giver en driftsvenlig energiløsning.
”Nymølle” forener komfort, velholdte rammer og enestående natur – en ejendom med sjælden beliggenhed og mange anvendelsesmuligheder
Økonomisk overblik
Opret dig i køberkartoteket og få besked om lignende boliger.
Få direkte besked, når der kommer relevante nye boliger til salg, der matcher dine ønsker. Du ser også de boliger, vi får til salg, som vi ikke viser på NyboligLandbrug.dk.
Tilpas filtre og opretKontakt

Kontakt
Tina Gammelgaard Dinesen
Skal du også sælge?
Kontakt os og få en salgsvurdering, så ved du hvad din ejendom er værd.
- Få et estimat af salgspris eller en grundig vurdering.
- Få et indblik i, hvad din ejendom er værd på markedet lige nu.
- Find ud af, hvor meget du selv kan købe for, hvis du ønsker at skifte ejendom.
Hvor langt er der til nærmeste?
Se hvor lang tid der er mellem denne ejendom og en anden adresse