Fritidsejendom - naturskønt beliggende
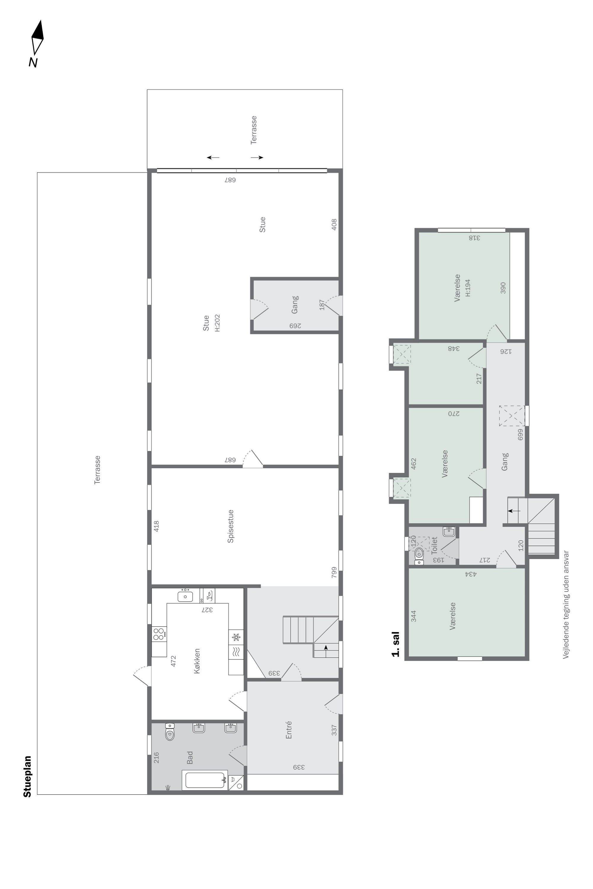
Denne ejendom, hvor en del af arealet er tidligere grusgrav, fremtræder i dag som en særdeles attraktiv naturejendom. Sammensætningen af træarter og naturtyper i samspillet med to store søer, gør ejendommen til en oase for dyrelivet på egnen. De ca. 38 ha er arronderet fint omkring bygningerne som er beliggende centralt og let tilgængelige fra offentlig vej og den høje beliggenhed giver en storslået udsigt til skoven og søerne. Hele naturarealet er gennemskåret af velanlagte stier og veje som gør det let at nyde alle dele af naturen. Skoven har de seneste år været passet af HedeDanmark. 16 ha af det samlede areal er dyrkede marker som giver et godt bidrag til økonomien .Boligen på 200 m² i grundareal og 48 m² udnyttet overetage fremtræder velholdt og indbydende. Udbygninger: Den nordlige længe på 200 m² er en tidligere svinestald der er ombygget med stålspær, træloft og plant betongulv. I forbindelse med indgangen i den ene gavl er et mindre rum indrettet som grovkøkken. En meget anvendelig bygning. Den vestlige længe på 360 m² er opdelt i to hvoraf den nordlige ende er indrettet som værksted/maskinhus med stor lofthøjde og stor port i gavlen. Den anden del er indeholder et gammelt tørreri og lade. Den sydlige længe er ligeledes delt i to med 100 m² gammel svinestald og 100 m² garager. Søger du en natur- og jagtejendom er denne det perfekte valg.
Økonomisk overblik
Opret dig i køberkartoteket og få besked om lignende boliger.
Få direkte besked, når der kommer relevante nye boliger til salg, der matcher dine ønsker. Du ser også de boliger, vi får til salg, som vi ikke viser på NyboligLandbrug.dk.
Tilpas filtre og opretKontakt

Kontakt
Frants Krebs Hansen
Skal du også sælge?
Kontakt os og få en salgsvurdering, så ved du hvad din ejendom er værd.
- Få et estimat af salgspris eller en grundig vurdering.
- Få et indblik i, hvad din ejendom er værd på markedet lige nu.
- Find ud af, hvor meget du selv kan købe for, hvis du ønsker at skifte ejendom.
Hvor langt er der til nærmeste?
Se hvor lang tid der er mellem denne ejendom og en anden adresse